24.05.2010

Секция 5
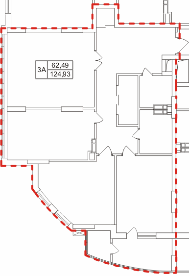
Квартира 3А (трехкомнатная)
Вход несет энергию будущего богатства, богатства полученного благодаря собственному интеллекту и удаче на государственной службе. Процветающей энергии денег и здоровья не досталось помещений. Другие хорошие комбинации попали в санузлы. Одна комната и кухня получили неблагоприятные комбинации 2-5 и 5-2. Приемлемы только две комнаты.
Эту квартиру можно скорректировать, сделав незначительную перепланировку. Это позволит избавиться от самой вредоносной энергии.
Но даже после коррекции жильцы квартиры могут много ссориться и иметь не очень крепкое здоровье.
Квартира очень средняя. Вряд ли ее купят очень успешные люди. Тем не менее, вполне приемлемая для жизни после коррекции.
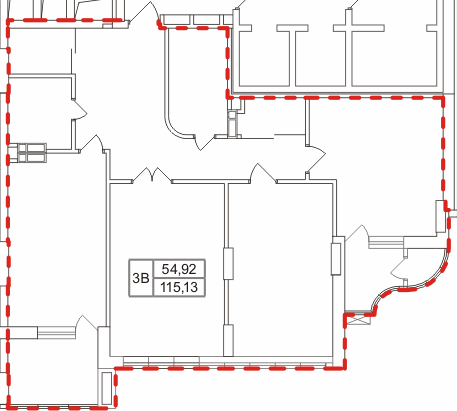
Квартира 3В (трехкомнатная)
На входе энергия финансового процветания. Энергия крепкого здоровья и хороших отношений ослаблена.
В гостиной энергия финансового благополучия и радостных событий.
Кухня несет потенциал пожара.
Хорошая квартира, если в семье нет маленьких девочек, людей с Гуа 7 и людей, чья профессия связана с ораторским искусством. Очень аккуратно нужно относиться к Фэн-Шуй кухни, технике безопасности на кухне.
Квартира 4А (четырехкомнатная)
Ура! Я нашла шикарную квартиру, с великолепным потенциалом к хорошему Фэн-Шуй.
На входе энергия финансового процветания, счастливых и радостных событий.
В комнате с эркером на фасаде нужно сделать гостиную, в соседней комнате нужно сделать главную спальню.
Есть «дырка» в виде санузлов на юге. Это может принести конфликты, ссоры, скандалы. Важно правильно выбрать места выходов воды.
У женщин могут быть некоторые проблемы с гинекологией или боли в пояснице.
Отличная квартира. Была бы абсолютно идеальной, если бы не было вырезанного угла, и санузел был бы в другом месте.
Эта секция гораздо более привлекательная!
Теперь об этажах
Наиболее “денежными” будут квартиры 3В на 4, 7, 9, 12, 14, 17 этажах. На 5, 10, 15 людям придется зарабатывать деньги тяжелым трудом. На остальных этажах в аналогичных квартирах деньги будут утекать сквозь пальцы, сколько бы жильцы не зарабатывали.
Наиболее “денежными” будут квартиры 4А на 5, 6, 10, 11, 15, 16 этажах. На 3, 8, 13 людям придется зарабатывать деньги тяжелым трудом. На остальных этажах в аналогичных квартирах деньги будут утекать сквозь пальцы, сколько бы жильцы не зарабатывали.
Итоговая статистика
В секции 5 - 12 хороших квартир из 45, т.е. примерно 27% квартир с потенциалом очень хорошего Фэн-Шуй. Отличная секция. В ней будет жить много процветающих людей.
Как видите, хорошую квартиру нужно поискать.
Я рассмотрела только часть факторов. Обязательно нужно оценивать внешние формы. Но пока территория не благоустроена, это сделать затруднительно, можно учесть только некоторые факторы.
Еще одно важное замечание. Если ваша цель – деньги, селитесь на высоких этажах. Но если вы будете так высоко, что рядом (по горизонтали) никого не окажется, вы будете одиноки. У вас не будет поддержки, защиты, крепкой семьи, если подходить в долгосрочной перспективе.
Более низкие этажи “видят” другие здания. У людей есть друзья, семья, хорошие отношения. Но если другие здания подходят слишком близко, из окон не видно просторов, возможности для заработка сокращаются.
Идеальны те квартиры, в которых процветающие звезды здоровья и отношений “опираются” на соседние здания, и со стороны процветающих звезд богатства открывается красивый вид. Чем дальше вы можете видеть, тем больше источников дохода у вас будет!
Обязательно квартиру нужно проверить на “совместимость” с жильцами. Квартира должна поддерживать жильцов. Это уже очень индивидуально, обобщенный анализ сделать не получится.
Хочу заметить, что такие исследования лучше проводить до покупки. В этом случае у вас есть все возможности существенно повысить уровень вашей удачи. Квартиру с хорошим Фэн-Шуй можно сравнить с крепкой иммунной системой.
Пусть дом каждого из вас будет защитой, оазисом тепла, любви, гармонии и изобилия!
Количество показов: 5763
Автор:
Инна Волкова