21.03.2011
В минувшие выходные в Киеве проходил мой мастер-класс по летящим звездам. Сначала, как обычно, нужно было рассказать о самых обычных вещах – главных табу в летящих звездах.
И вот я рассказываю, как опасно долго спать в комнате, где личное Гуа человека разрушено. Привожу примеры из практики, рассказываю о вероятных последствиях нарушения этого правила.
И тут одна ученица буквально «сошла с лица» - расстроилась и испугалась одновременно. Я спрашиваю: «Что случилось?»
Она говорит: «Мама умерла от рака несколько лет назад. Ей было 50 лет. Ее Гуа было 4 (дерево), и она спала в комнате с горной звездой 7 (металл). А теперь я сплю в этой комнате, мне очень неуютно, я не высыпаюсь, и мое Гуа 3 (дерево)».
Я попросила ее нарисовать план квартиры на доске.
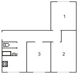
Квартира такая

И она спит в комнате 1. И действительно в комнате оказывает влияние горная звезда 7.
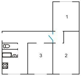
Я предложила простой выход. Добавить еще одну дверь, чтобы энергетически объединить комнаты 1 и 2. В этом случае обе комнаты получают прекрасную энергию, гармоничную с жильцами.

Но каково же было мое удивление, когда она говорит: «Раньше так и было, но мы решили сделать комнаты раздельными. Пока комнаты были смежными, все было очень хорошо. А после того, как внесли изменения, мама заболела. Тогда мы не связали в одну цепочку эти события. Как жаль, что я не знала летящие звезды раньше».

Так было изначально.
Само собой, девушка очень скоро сделает перепланировку. Поставить дополнительную дверь – это очень легко. Это хорошо, что решение такое простое.
Само собой, мама заболела не только из-за перепланировки, обычно сумма разных факторов оказывает влияние, прежде всего столпы судьбы, предрасположенность. Но смысл Фэн-Шуй состоит в том, чтобы множить хорошие воздействия, и минимизировать плохие.
Фэн-Шуй – это своего рода весы. Если мы знаем, что есть прогноз плохого события, нужно создать в пространстве несколько хороших предсказаний на ту же тему. И тогда хорошее пересилит плохое.
Если Вы хотите управлять событиями своей жизни и жизни близких, помогать другим людям решать их задачи при помощи создания грамотного окружающего пространства, приходите на второй семинар по Летящим звездам. Именно на нем мы будем рассматривать правила распределения Ци, а также учиться искать решения в тех ситуациях, когда люди вынуждены жить в помещениях с плохими звездами.
Подразумеваются, что участники второго модуля знают,
- как строятся карты звезд
- триграммы и их связь с природными явлениями, профессиями, членами семьи, органами в организме и частями тела, цветами и формами
- значения комбинаций и звезд и принципы формирования предсказаний.
И имеют страстное желание менять свою жизнь и жизнь окружающих людей в лучшую сторону!
Количество показов: 7479
Автор:
Инна Волкова